Maison - D


Rénovation complète de deux maisons avec la création d'une véranda pour les réunir.

Suivi de chantier Agencements sur mesure Mobiliers et décor

Client : Particulier

Surface : 170 m2

Année : 2023


Plan de projet Rez-de-chaussée Ech : NC

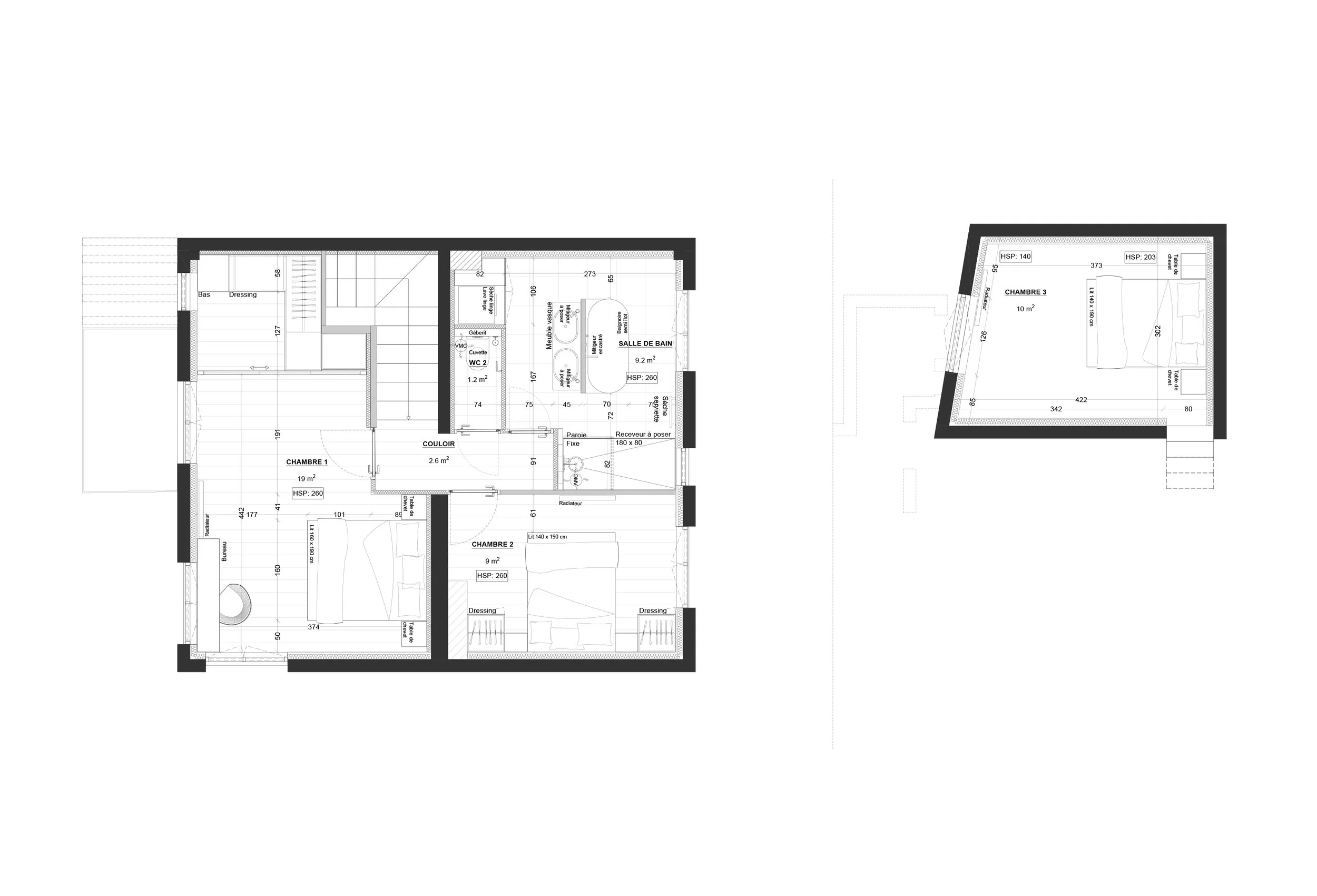
Plan de projet R+1 Ech : NC

Précédent
Précédent

Maison - B

Suivant
Suivant

Maison - C